皆さん、お元気ですか
Bistro2983は、この度、改装を行うこととなりました。
改装期間は、2017年10月6日から24日を予定しており、その間はBistro2983の営業はお休みとさせて頂きます。
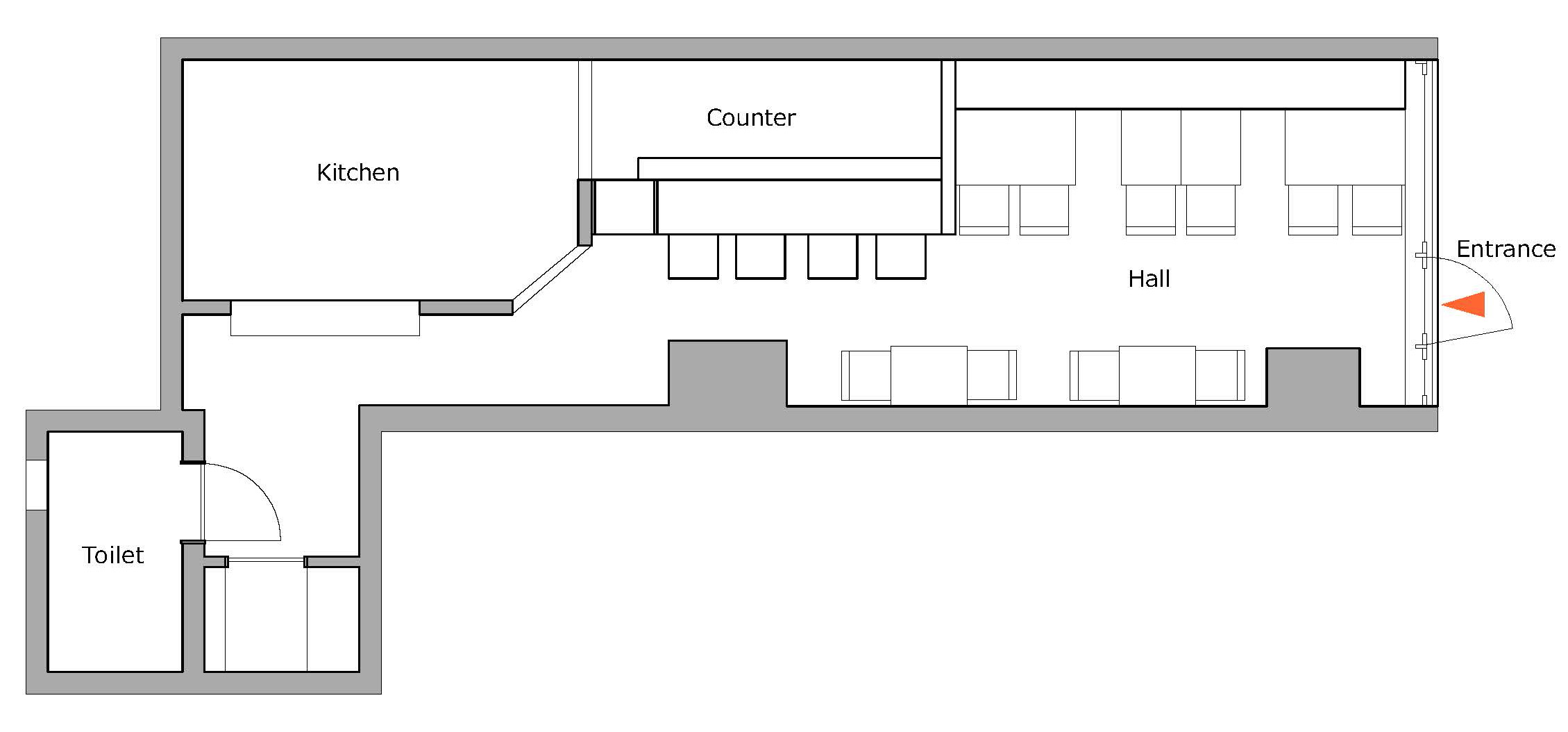
内容としては、店舗入口にあったバーカウンターを撤去して、新設したキッチンの壁の開口部と新設のバーカウンターを接続するという工事です。
今回の改装により、バーカウンターとキッチンの連携が向上し、サービスと生産性の向上を期待しています。
またカウンター席の一部も、今までは壁に向かい合っていましたが、この改装により対面型に移行するため、居心地も良くなると思います。
そのことにより、よりゲストの方々にクオリティーの高い商品提供とその魅力を伝える商品説明の機会が増えると考えています。

(完成予想図面)
ご来店されている皆様とは、しばしのお別れとなりますが、また再オープンの際に、お会いできるのを楽しみにいたしております。
au revoir!
Bistro2983 Chef Patron

Master of Life Science 生命科学修士

